Coming Spring 2020
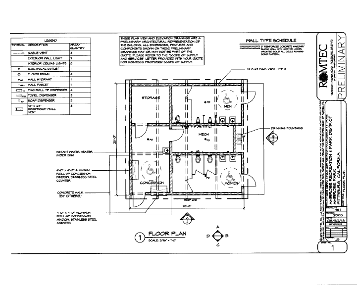
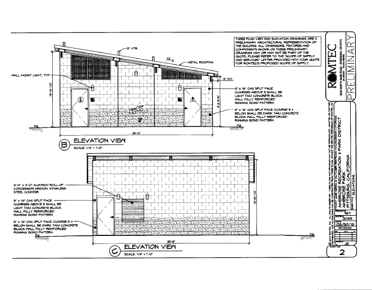
The Ambrose Recreation & Park District is pleased to announce that Ambrose Park will be receiving a new restroom. The District in partnership with Supervisor Federal Glover and the City of Pittsburg will be replacing the lower restroom adjacent to the pool with a brand new, ADA compliant restroom and concession room (snack shack) that will serve both pool and park patrons. Construction is scheduled to be completed in late spring 2020.


